ルミエール西京極

価格 980万円

1/19
Point

☆ルミエール西京極☆7階建6階部分・2025年9月壁・天井・全室クロス張替済・東向きバルコニーにつき陽当たり良好!ローソン天神川七条店まで徒歩2分、ファミリーマートかどの七条店まで徒歩9分、スーパーライフ西京極店まで徒歩16分、ウエルシアダックス右京葛野八条店まで徒歩9分、京都西京極郵便局まで徒歩8分、京都中央信用金庫葛野支店まで徒歩11分、アヤハディオ吉祥院八条店まで徒歩13分!現況空室につき即内覧・即ご入居可能!

物件コード「5307」をお伝えください。

電話でお問合せ LINEでお問合せ

物件情報

種目 中古マンション
価格 980万円
物件名 ルミエール西京極
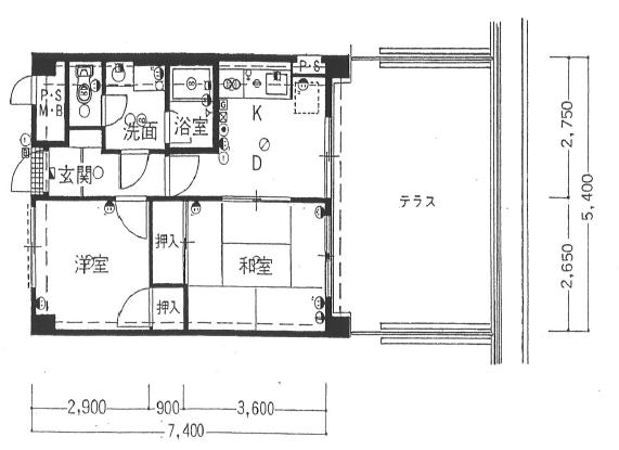
間取 2DK
棟総戸数 187戸
階/階建 6階/地上7階建
住所1
京都市右京区西京極末広町 地図
学区 西京極西 120m/西京極 980m
交通 阪急京都線 西京極駅まで 徒歩10分
専有面積 39.66m²
バルコニ面積 23.11m²
方向
建物構造 鉄筋コンクリート造
駐車場 空無
駐車場月額 -
修繕積立費 6,200円
取引態様 仲介
用途地域1 準工業地域
管理形態 全部委託
西暦築年月 1983/08
築年数 築42年
引渡時期 即時
諸費用
特色 ☆ルミエール西京極☆エレベータ、二階以上、都市ガス、管理人常駐、人気の阪急沿線、駐輪場:自転車100円/月、バイク200円/月(台数制限無し)、即入居可、2025年9月壁・天井・全室クロス張替済
右記注目ポイント以外の長所・短所は電話やメールでの個別のご質問でお答えさせていただきます! ☆ルミエール西京極☆7階建6階部分・2025年9月壁・天井・全室クロス張替済・東向きバルコニーにつき陽当たり良好!ローソン天神川七条店まで徒歩2分、ファミリーマートかどの七条店まで徒歩9分、スーパーライフ西京極店まで徒歩16分、ウエルシアダックス右京葛野八条店まで徒歩9分、京都西京極郵便局まで徒歩8分、京都中央信用金庫葛野支店まで徒歩11分、アヤハディオ吉祥院八条店まで徒歩13分!現況空室につき即内覧・即ご入居可能!
※掲載されている物件データが現状と異なる場合は現状を優先します。

更新情報

情報更新日 2026年01月18日
次回更新予定日 2026年01月19日
取引条件有効期限 2026年01月18日

ローンシミュレーション

物件価格 980万円
頭金 万円
金利
借入期間
再計算
月々の返済額
年間の返済額
返済総額
利息合計
※ 毎回の返済額が開始から終了まで均等となる「元利均等返済」で算出しています。
※ 金利は期間中固定となる固定金利を採用しています。
※ 月々の返済額は小数点以下を繰り上げしております
※ シミュレーションでの結果は、あくまでも目安で、概算になります。実際にローン契約をする際は、詳細を金融機関にご確認ください。
※ 実際のローン契約時には諸費用・税金(手数料や印紙税、保証料など)が別途かかりますので、契約の際にご確認ください。

物件コード「5307」をお伝えください。

電話でお問合せ LINEでお問合せ
電話 メール LINE
簡易お問合せ

お名前


メールアドレス


問合せ内容


OK